Loading...
Loading...

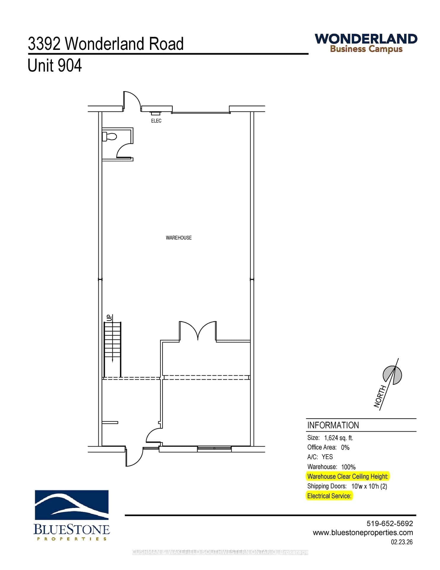
904- 3392 Wonderland Road
London South, ON N6L 1A8
Wonderland Business Park offering a wide variety of size options for Retail, Office and Warehouse uses. Located in South London in a major shopping node with highway 401 access. Unit 904 is 1,624 SF and approximately 100% warehouse with a former office converted to paint booth. 1 (10x10) grade level door. Extremely broad zoning allows for Retail, Warehouse, Support Office, Medical/Dental Office, Wholesaling, Assembly Hall, Commercial Recreational, Clinics, Restaurants, Place of Worship, Business services and Personal services and many more. This unit is available for immediate possession.
The listing data is provided under copyright by the Niagara Association of REALTORS®. The information provided herein must only be used by consumers that have a bona fide interest in the purchase, sale or lease of real estate and may not be used for any commercial purpose or any other purpose.
The trademarks REALTOR®, REALTORS®, and the REALTOR® logo are controlled by The Canadian Real Estate Association (CREA) and identify real estate professionals who are members of CREA. The trademarks MLS, Multiple Listing Service, and the associated logos are owned by CREA and identify the quality of services provided by real estate professionals who are members of CREA.
Last updated: 2026-03-23, 6:39:59 p.m.
Scores provided by Walk Score