Loading...
Loading...

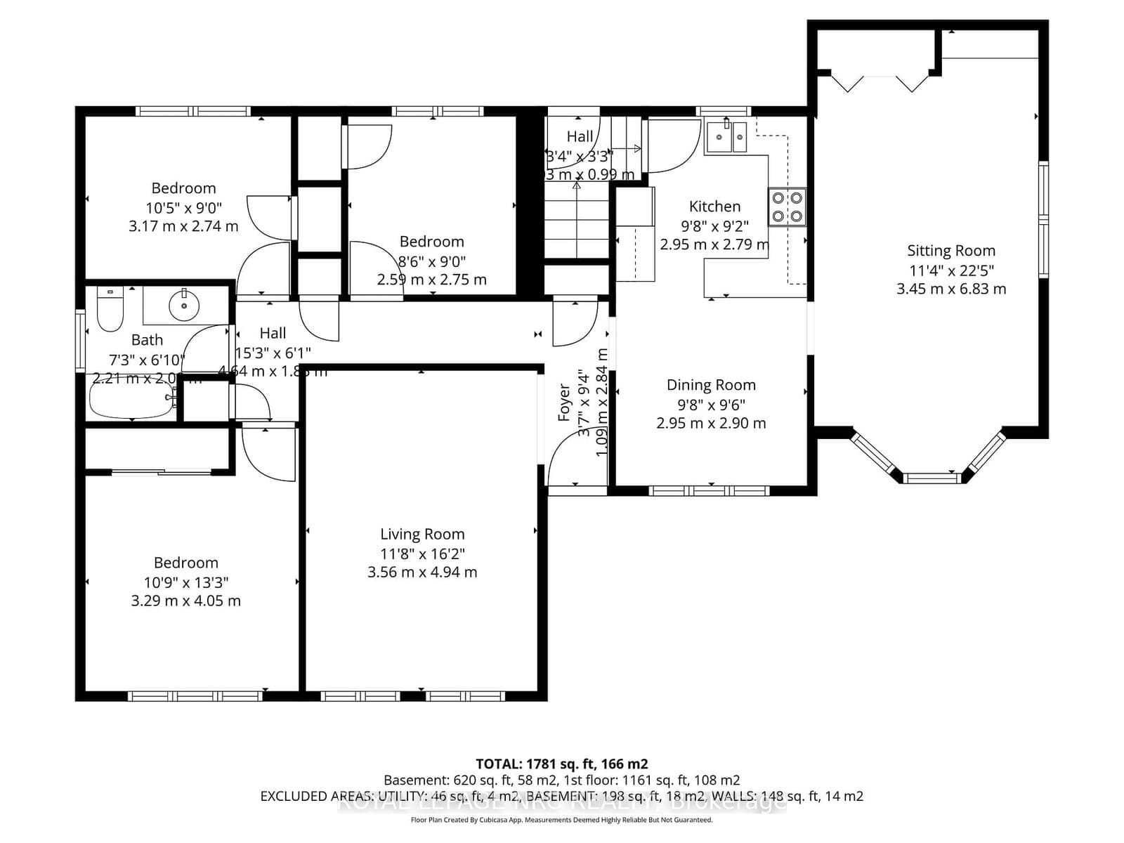
3987 Montcalm Crescent
Niagara Falls, ON L2G 6L9
This brick bungalow, located in the quaint Village of Chippawa, is just a short walk to the boat launch park on the Welland River, or as the locals like to call it...the Crick. The garage has been converted into another room which could be used as a main floor family room or a 4th bedroom or it could be converted back to a garage depending on your needs. The 70x120 lot with it's mature trees makes a beautiful private backyard with a separate entrance that goes straight down to the partially finished basement. There are 2 bathrooms and the appliances are included. There is even a hook up for a gas stove behind the current electric stove for those "chef" type people. This home has been well loved and updated over the years. They include soffits facia and eaves, roof including the wood under the shingles, windows, blown in insulation in the attic. There is a reverse osmosis system and water softener. The rec room has a wet bar which makes it convenient for the plumbing of an extra kitchen. Four years ago the wood porch deck as well as the front door, screen door and upstairs inside doors were replaced. There is also a gas hook up for the bbq in the backyard and a gas fireplace in the rec room. This home has great bones and in a fabulous area. Great for the retiree or first time buyer or even to convert into a separate unit for the inlaws when they come to visit. Let your imagination lead you. This is a great house!! And the dog will love the fenced in backyard...the kids will like it too :)
The listing data is provided under copyright by the Niagara Association of REALTORS®. The information provided herein must only be used by consumers that have a bona fide interest in the purchase, sale or lease of real estate and may not be used for any commercial purpose or any other purpose.
The trademarks REALTOR®, REALTORS®, and the REALTOR® logo are controlled by The Canadian Real Estate Association (CREA) and identify real estate professionals who are members of CREA. The trademarks MLS, Multiple Listing Service, and the associated logos are owned by CREA and identify the quality of services provided by real estate professionals who are members of CREA.
Last updated: 2026-03-27, 8:55:38 p.m.
Scores provided by Walk Score